不動産仲介のエステート・やまもと

岡山市の不動産のことならお気軽にご相談下さい!

不動産仲介のエステート・やまもと

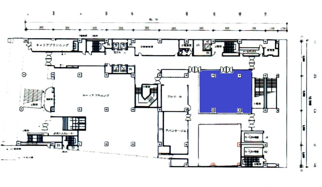
【貸店舗】第一セントラルビル1号館1F北東詳細

所在地 岡山市北区本町 賃料 99.46万円
間取り -- 入居日/築年月 相談/--

物件PR

物件名称 第一セントラルビル1号館1F北東 面積 199.28m2
敷金・保証金 10カ月 礼金 --
共益費 家賃に含む。 駐車場 無(--)
交通 山陽新幹線 岡山駅徒歩4分 周辺環境 --
構造 SRC造陸屋根地下2階地上9階建 取引形態 仲介
情報更新日 2025/10/14
設備・備考
EV、男女別共用トイレ・給湯室、セキュリティ、防犯カメラ。
※飲食不可
※ビル指定借家人賠償責任保険・家賃保証会社あり

この物件へのお問い合わせ

物件ID:80521の物件に対してお問い合わせを行います。

以下のフォームよりご送信ください。 担当者が確認後ご返答いたします。
なお、お問い合わせいただきました内容によっては、 ご返答までに1週間程度のお時間をいただく場合がございます。あらかじめご了承ください。

当社の個人情報保護方針については「個人情報保護方針」をご覧ください。

※は必須項目です。

[contact-form-7 id="609" title="contact_article_1"]
ランキング
岡山市北区表町1
22.0万円
事務所/-
岡山市北区表町1 事務所
ランキング
岡山市北区表町1
24.0万円
店舗・事務所/-
岡山市北区表町1 店舗・事務所
ランキング
岡山市北区中山下1
75.0万円
店舗・事務所/-
岡山市北区中山下1 店舗・事務所
ランキング
岡山市北区表町1
150.0万円
店舗/-
岡山市北区表町1 店舗
ランキング
岡山市北区中山下1
2.42万円
駐車場/-
岡山市北区中山下1 駐車場
エステートやまもと
TOPへ戻る